生物潔凈實驗室的裝修布置
生物潔凈室的應用越來越廣泛,目前集中在醫院手術室和病房、制藥廠、生物安全實驗室、動物房等。同樣級別的潔凈室,由于應用領域不同,要求也有很大區別。
首先,不同類型的生物潔凈室必須遵循相應的規范要求,不了解這些規范,是無法進行設計施工的。
目前針對不同類型生物潔凈室的一些規范如下表1 所列。只有熟悉各行業的特點,充分掌握各規范的要求,才能切實做好生物潔凈室的設計、施工、調試等工作。

表2 中將各參數作了詳細的比較。應當指出,表2 中的參數要求并不詳盡,應以原規范為準。

了解了不同生物潔凈室的不同要求,下面談談在生物潔凈室設計施工中遇到的幾個問題。
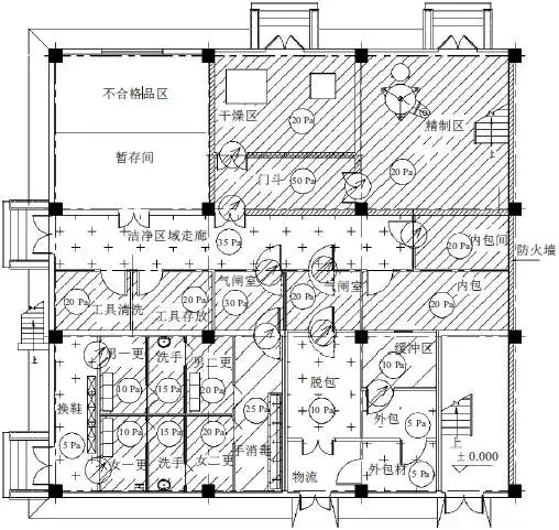
首先是平面布置方面的問題。
這個問題在藥廠潔凈廠房和生物安全實驗室的平面設計中尤為突出,主要的問題就是平面過于復雜。
的確,在藥廠平面設計中,應盡量保證潔凈區不受污染,做到合理分區,潔污分開,人流、物流明顯,但一定要避免矯枉過正。由于一些行業主管部門在制訂驗收標準時,缺乏專業知識,對潔凈室的原理和特點了解不夠,往往將潔凈室過于神秘化,復雜化,因此對潔凈室平面布局過于苛刻,造成很多不必要的麻煩。

這個問題在緩沖室的設置上尤為突出。例如某藥廠人員進入潔凈廠房的過程是這樣的:換鞋、一更、緩沖、二更、洗手、消毒、緩沖、潔凈走廊、三更、緩沖或手消、毒高級別潔凈室,由此,工作人員在進入高級別潔凈室工作前,需要進出9個房間,開啟關閉18扇門,其復雜程度可想而知。
另外,很多藥廠由于規模小投資少,廠房十分緊湊,以至于每間輔助間的面積只有幾平方米,甚至只有2平方米,于是工作人員在幾乎不能同時容下2人的房間里,不停的開門、轉身、關門,以至于近乎暈頭轉向。
要求嚴格是好事,但如果矯枉過正就會適得其反,很多工人為了進出方便,往往很多門都不關,很多房間形同虛設。將可以合并的房間合并,將沒有必要設置的房間取消,是解決這一問題的辦法。例如洗手消毒完全可以當作緩沖間,另外對于低級別潔凈室之間,如萬級和10萬級潔凈室之間,不一定非要設置緩沖室,有些場合,三更的設置也是可以考慮的。
緩沖間的設置主要是通過進出兩門的不同時開啟起到氣閘的隔離作用,如果嚴格管理,一些輔助房間如二更等,完全可以起到緩沖作用。另外,在10萬級和萬級房間也沒有一定設置緩沖的必要。
10萬級房間和萬級房間內的空氣含塵濃度不象一些非專業人士想象的那樣相差10倍。門一開啟就會污染。事實上,兩者相差不多,例如獸藥GMP(2002)中規定,10萬級房間*低換氣次數是15 次/h,萬級房間*低換氣次數是20 次/h,相差不多,另外由于房間體積普遍較小,例如對于4m²的房間,5 次/h的換氣次數僅有50m³/h 左右的送風量,而這50m³/h的送風量是較難調整的,另外,無論設計施工都要適當留有一定余量。
所以,從若干藥廠來看,在人員進出路線上的一些小房間,除了名義上的潔凈度級別不同外,其換氣次數和空氣含塵濃度沒有什么區別。有時所謂的10萬級房間的含塵濃度比萬級房間還要低。
以上的觀點證明不能以主觀意識制訂驗收標準,應該充分以實際出發考慮問題。精簡平面并不影響實際功能,而且可以使人員進出方便簡單,節省工程造價,擴大有效使用面積,何樂而不為。同樣的問題還出現在三級生物安全實驗室的建設中,行業主管部門除了要求加設很多緩沖外,還要求做到人流、物流、潔物、污物各走不同路線,完全分開,但事實上是不可能做到的,也沒有必要。
一些政策制訂人為強調重視程度或迎合一些需要,提出的“生物安全怎么強調都不過份”的說法是不負責任的,對于工程技術人員來講必須一切從實際出發,凡事都要有度。只要能完全滿足安全需要即可,層層加碼是專業知識不足,缺乏自信心的表現。
自SARS以來提出的P3實驗室設“三區兩緩”(即實驗室分為清潔區,半污染區和污染區,不同區域之間必須設緩沖)的要求有待商榷,從國外的一些資料也可以看到,一些發達國家的生物安全實驗室平面比我們簡單的多,一些危險度不高的實驗室設置“兩區一緩”就足夠了。
制訂“三區兩緩”的人可能設計工作接觸不多,事實上,由于生物安全實驗室對壓差要求極為嚴格,“三區兩緩”往往要6、7層房間,層層負壓,而且要嚴格保證,無論從設計、施工以及自控上,都是極難保證的。所以還是要從實際出發,讓生物安全實驗室真正做到安全、實用、經濟、可行。

航天科恩承接的潔凈室施工
在生物潔凈室施工中有一個突出的問題就是圓弧角的使用。
生物潔凈室主要以控制細菌等微生物為根本目的,而微生物極易在一些角落里滋生,因此生物潔凈室應易于清掃,盡量減少死角,因此在JGJ 71-90《潔凈室施工及驗收規范中》的第2.3.8條規定:踢腳板部分施工時應與墻面齊平或略縮進2~3mm。
當踢腳板與地面材料相同時可做成小圓角,其圓角半徑R 應大于等于50mm;當踢腳板與地面材料不同時,應用彈性材料嵌固。除地面與墻面的交角要求可設圓角外,對其他部位并未做規定。
現在普遍的做法是將所有交角均加裝鋁合金圓角,由于制作粗糙,使得很多工程的圓角流于形式,甚至作用適得其反。對于墻壁之間,墻壁與頂棚之間的圓角,本來作用不是很大,現在成了施工單位掩蓋粗糙接角的“遮羞布”。
對于墻面與地面的交角,其實是十分關鍵的,但往往成為藏污納垢,滋生細菌的場所。原因在于:由于圓弧角有厚度,在圓角與板壁和地面的兩個交角處,便會形成兩個細小的接縫,由于地面、板壁不平,在接縫處往往有很多縫隙,很多施工單位偷工減料,沒有打膠密封,有的即使打膠了,也會有開裂的現象。因此本來的目的是為了消除衛生死角,而實際情況卻增加了很多隱患。
這種情況在平時不明顯,在潔凈室進行衛生清掃時就會暴露無遺,地面上一旦有水,水會通過縫隙滲到隔壁房間,圓角下經常滿是水漬,成為細菌滋生的絕好場地。造成這種情況的根本原因是對規范的規定沒有真正領會,只是流于形式。
對于我國的生物潔凈室建設,我們已不能僅僅滿足于那種解決“有與沒有”的層面,必須提高層次,做到真正實用,而不是應付認證工作,不僅要建,而且一定要建好。
有幾種做法值得推薦:
1.安裝圓角之后,鋪設一定厚度的自流坪地面,徹底消除地面接縫。
2.安裝圓角之后,鋪裝整體卷材地面,然后將卷材沿圓角上鋪至壁板,使圓角和地面成為一體。
3.采用建筑材料(如膠砂)砌筑圓弧狀的壁板基座,基座與地面做同樣的處理,如刷涂料等,使地面和基座成為一體,而且基座作為踢腳部分與墻面齊平或低于墻面。作為潔凈室地面,現澆水磨石具有耐磨、完整、耐腐蝕、耐刷洗、造價低廉的特點,在低級別潔凈室中是完全可以采用的。
但一些采用水磨石地面的工程卻出現了問題:空氣中的含塵濃度居高不下,尤其是≥5μm 的大顆粒嚴重超標,排除過濾器泄露的可能外,發現根本原因在與水磨石地面。很多地方掉灰,甚至可以用指甲劃出粉末。
出現這種問題的原因是因為水泥標號不夠。在JGJ 71-90《潔凈室施工及驗收規范》的第2.2.2 條中對潔凈室的地面做法有這樣的規定:
潔凈室涂料地面水泥砂漿基底的水泥標號不得低于425 號;水磨石地面應現澆,所用小石子直徑為6~15mm,水磨石磨細后,宜用不揮發的護面材料打涂。一些認證人員認為水磨石地面不可行的觀點是片面的,只要遵守規范規定,現澆水磨石完全可以是一種物美價廉的地面材料。一些施工單位偷工減料,采用低標號水泥,玻璃嵌條,而且表面不做任何處理。
其實生物潔凈室的特點還很多,實際工程中的問題也很多,我們只有充分了解不同類別潔凈室的不同要求和特點,熟悉規范的規定,才能真正把生物潔凈室建設好。
上一篇:實驗室裝修施工具體方案
下一篇:無菌室的裝修與設計

